Головна >> Продаж квартир >> Об'єкт №213215517

Продається квартира Вінниця, Вінницька, Агрономічне  (№ 213-215-517)

Ціна: 36 925 $

Продається квартира Вінниця, Вінницька, Агрономічне фото 1
Продається квартира Вінниця, Вінницька, Агрономічне фото 1
Продається квартира Вінниця, Вінницька, Агрономічне фото 2
Продається квартира Вінниця, Вінницька, Агрономічне фото 3
Продається квартира Вінниця, Вінницька, Агрономічне фото 4
Продається квартира Вінниця, Вінницька, Агрономічне фото 5
Продається квартира Вінниця, Вінницька, Агрономічне фото 6
Продається квартира Вінниця, Вінницька, Агрономічне фото 7

Вінниця, Вінницька, Агрономічне

Характеристики

Ціна: 36 925 $
№ об'єкта: 213-215-517
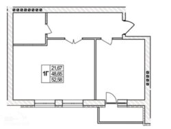
Кімнат: 1, студія
Поверх: 1 / 4
Площа: 52 / - / - м2
Санвузол: 1 сумісний
Балкон: лоджія
Додатково: новобудова

Опис

Продаж 1к квартири БЕЗ КОМІСІЙНИХ в новому ЖК
Гарний варіант для інвестування коштів на перспективу.
Цегляний чотирьох поверховий будинок на 4 секції та 64 квартири класу комфорт.
Квартира продається за дуже привабливою ціною.
Будинок на етапі будівництва. Здача планується в 4 кварталі 2025 року.
Здаватиметься квартира з чорновою гіпсовою штукатуркою, розводкою електрики, встановленими лічильниками на газ та ел. енергію, встановленим двоконтурним газовим котлом.
ЖК Озерний вирізняється зручною локацією - центр с. Агрономічне. Поруч лікарня, школа, садочок, магазини. Зручна транспортна розвязка.
Дзвоніть!!! Не втрачайте свого шансу придбати квартиру за доступною ціною.

Об'єкт на карті

Замовити зворотній дзвінок