Продається квартира Вінниця, Вінницька, Слов`янка (№ 213-182-702)
Ціна: 46 420 $
Вінниця, Вінницька, Слов`янка
Характеристики
| Ціна: | 46 420 $ |
|---|---|
| № об'єкта: | 213-182-702 |
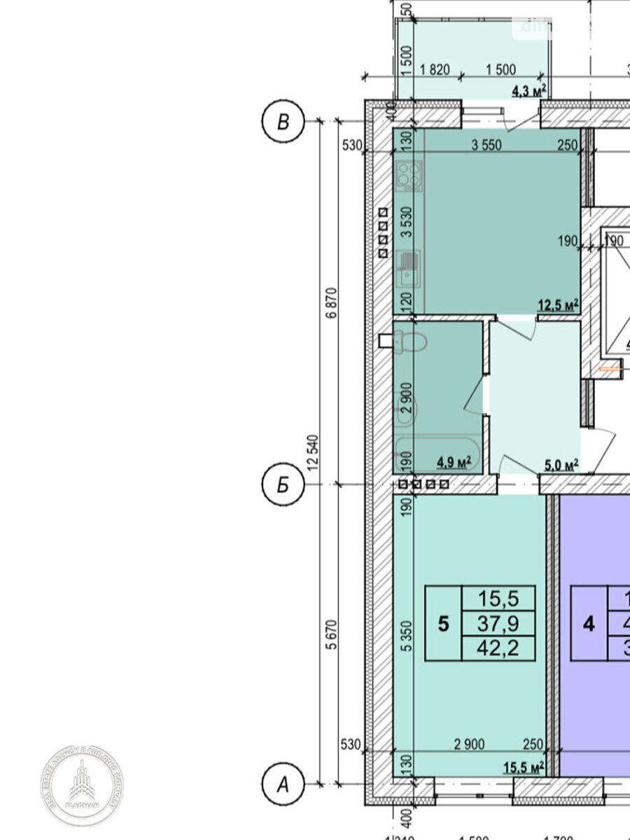
| Кімнат: | 1, студія |
| Поверх: | 3 / 9 ліфт |
| Площа: | 42 / - / - м2 |
| Санвузол: | 1 сумісний |
| Балкон: | балкон+лоджія |
| Додатково: | новобудова |
Опис
Переваги будинку:
Популярний район, розвинена інфраструктура, якісний забудовник, індивідуальне газове опалення.
Здача кінець 2025року.
Квартира на дві сторони.
Вигідна пропозиція.
Продаж від забудовника.














