Продається будинок Зарванці, Вінницький, Вінницька (№ 22-429-100)
Ціна: 86 000 $
Адреса: Зарванці, Вінницький, Вінницька
Характеристики
| Ціна: | 86 000 $ |
|---|---|
| № об'єкта: | 22-429-100 |
| Тип: | будинок |
| Поверхів: | 2 |
| Спалень: | 3 |
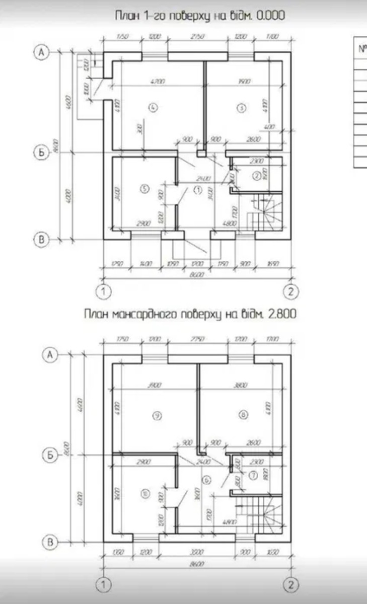
| Площа будинку: | 100 м2 |
| Ділянка: | 4 сот |
Опис
Продаж нового житлового будинку (можна по єВідновлення та єОселя).
Продаж будинку з комунікаціями! Газове опалення! Розглядаємо продаж під державні програми (єВідновлення, єОселя, постанови). Будинок якісної побудови! Залита тепла підлога, встановлені батареї. Будинок утеплений зовні, по периметру зроблений паркан, ворота. Вдале плануванням! Широкий коридор, велика кухня- вітальня з виходом на терасу, три спальні кімнати, гардеробна та два санвузла. Залита тепла підлога, встановлені редуктори. Будинок утеплений зовні, по периметру зроблений паркан. Поряд транспортна зупинка. Розвинена інфраструктура, поруч супермаркет, магазини, транспортна зупинка, школа. В пішій доступності ліс та озеро. За більш детальною інформацією дзвоніть, пишіть..
Відстань до найближчого міста: У місті;
Кількість кімнат: 3;
Тип будинку: Будинок;
Зовнішнє утеплення стін: Пінопласт;
Cанвузол: 2 і більше;
Опалення: Індивідуальне газове;
Ремонт: Під чистову обробку;
Комфорт: Огорожа, Підігрів підлоги;
Комунікації: Асфальтована дорога, Електрика, Газ, Каналізація септик, Свердловина;
Інфраструктура (до 500 метрів): Магазин, кіоск;












